![]() |
||
| ▲ 권식철 박사 | ||
권식철 박사는 과학기술부 민군겸용기술개발사업의 책임자로 활동하면서 경질 크롬을 고온·고압용 장축 실린더 내면에 적용하는 코팅기술을 개발하여 국내 기계소재 산업의 활성화에 크게 기여하였다.
이번 연구 성과는 최근 첨단산업의 발달과 더불어 관련 산업기계의 사용조건이 고온·고압의 악조건 환경으로 확대 활용되면서 내마모 코팅기술의 중요성이 한층 더 중요시되어 왔지만, 국내 관련 산업계의 기술적 한계를 극복할 수 있는 기술 개발 미흡으로 항상 애로를 겪어온 생산기반기술의 기반을 한 차원 높인 표면공학기술이다.
특히 이번 성과는 국내 최초로 길이 10m급, 내경이 120mm인 장축의 실린더 내경 코팅기술로 실린더의 내경대비 길이의 비가 55로 실린더 안쪽까지 5% 이내의 두께 균일성을 갖는 밀착성이 우수한 견고한 코팅이 입혀져야 하는 매우 고난도의 기술을 개발한 공학적 성과를 이룩하였다. 코팅 성능 또한 3000℃의 높은 순간온도와 1만 기압의 압력에서도 견딜 수 있고 0.1%의 반복 수축 팽창 조건에서도 소지와의 밀착성이 보장되는 코팅기술이다.
이와 같이 확립한 원천기술을 바탕으로 국내 산업체에 기술이전을 통한 양산화에 성공하였으며 상업적인 생산체계를 확립시킴으로써 국내의 고성능 실린더 개발의 새로운 장을 개척한 원천기술과 실용화 기술을 동시에 보유하는 성과로 높이 평가 받고 있다.
이러한 기술은 오늘날 기계자동화공업의 근간을 이루고 있는 유·공압장치의 핵심부품인 실린더의 수명 및 정밀도를 생명으로 하는 정밀기기의 내구성을 획기적으로 향상시킬 수 있는 중요한 연구 성과로 특히 국내 방산용 특수 고압 실린더에 기술의 우수성을 인정받고 활용됨으로써 국내 산업에 직접적인 공헌을 하고 있는 기술이다.
권 박사는 지난 25년간 꾸준히 표면공학 연구에만 전념하여온 연구원으로 경력에서 알 수 있듯이 최근 3년간 국내·외 학회지 55편 게재, 특허등록 5건의 실적을 이루는 연구 활동을 하였으며, 특히 최근에는 과학기술부의 국가지정연구실사업으로 전 지구적인 문제인 무공해 표면기술 개발 연구에 몰두하고 있다.
/ 한국과학재단 홍보관리팀
| 권식철 박사는...
1951년생·55세 소속 : 한국기계연구원 재료연구소 신기능재료연구본부 표면기술연구센터 책임연구원 학력
경력 수상경력 |
수상업적
장축 고압실린더
내면의 내마모 코팅기술 개발
개요
최근 첨단산업분야에 있어 초고온 고압의 극한조건하에서 작동되는 기계의 수요가 발생하면서, 그 구동의 핵심부품인 고압 실린더의
내구성에 대한 요구도가 더욱더 증가되고 있음.
더욱이 폭발 제어용의 실린더는 3000℃의 고온과 약 1만 기압의 고압에서도 충분히 활용이 가능한 내구성을 만족시켜야 하므로
내경 코팅이 필수적임.
실린더의 내경 또한 10m의 장축길이에 비해 대단히 적어(Aspect Ratio : 1:55)
가공공정에서의 생산적인 가치 창출에 적합한 0.1mm 두께에 +/- 5% 이내의 두께 균일도가 적절히 제어 되어야 함은 물론, 0.1%의 반복
수축 팽창 조건에서도 코팅과 소지와의 충분한 밀착성이 보장되어야 하는 기술적 문제의 극복이 요구됨.
상기의 기술적 사항으로 인하여 기존의 국내의 코팅 산업계에서 시도가 어려웠을 뿐만 아니라, 선진국으로부터 기술도입에 따른 기술적 종속과 상응한 막대한 기술료 유출로 국내 기술 개발의 필요성이 절실히 대두됨.
국내의 코팅 기술력을 국제적 수준으로 제고시키며 고온 고압용 실린더의 국산화를 이루기 위한 본 연구에서는 코팅과정에서 자연적으로 유발되는 내부의 결함에 대한 새로운 접근법을 고찰하고 이 결함의 적절한 이용으로 내구성이 보장된 밀착력을 갖는 첨단 코팅기술을 개발하는 것을 목적으로 하였음.
내용
실린더의 내면 코팅의 선정은 10m장축 내면과 큰 Aspect Ratio(1:55)에 적합한 방법으로 전해도금법을 사용하여 경질
크롬 도금층을 균일하게 코팅토록 결정하였으나, 앞서 언급했듯이 크롬 전해도금법에는 황산을 촉매로 한 크롬산 도금욕인 Sargent욕으로 높은
고유의 응력으로 인한 코팅층 내에 발생하는 균열(그림 1)의 문제로 내식성은 물론 코팅층의 내마모성문제로 소정의 극한적 고온 고압의 활용에
부적합하게 되어, 새로운 접근 방안으로 균열에 대한 형태를 조사하여 다양한 형태의 균열이 생성되고 있음을 확인함.
![]() |
||
본 연구에서는 이러한 생성 균열이 외적인 응력에 의하여 성장하여 코팅층의 두께에 다다를 때에 코팅층의 탈락이 유발되게 되는 것으로 추정하여 코팅층 내의 관통균열이 없는(그림 2) 도금 공정 개발로 균열을 짧게 하기 위한 방법으로 단층(one layer)과 다층(multi-layer)을 실험적 검증을 시도하여 모두 가능성을 확인 하였지만, 이중 산업적 활용측면에서 보다 경제적인 단층방식으로 코팅층 구성을 선택하여 가능한 많은 균열이 단속적으로 생성되는 전해조건 최적화 연구함.




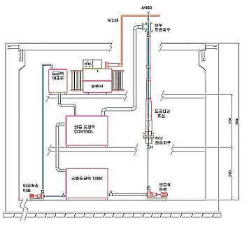
실린더 내면 코팅의 두께 균일성 및 균열 형태에 대한 파일롯(pilot) 실험(그림 6)을 통한 실험결과를 토대로 시제품용 코팅의 장치 제작에 필요한 기본설계자료로 할용 함.


기대효과 및 활용방안
본 연구팀에서 개발된 장축 고압 실린더 내면의 내마모 코팅기술 개발은 직접적으로 국내 방산업계의 화포류 내면
코팅에 활용됨으로써 국내 방위력 증강에 직접적인 기여가 큼.
장축 실린더 외면 코팅에도 적용 가능하므로 엘리베이터용 실린더로써의 새로운 활로가 개척 중에 있음.
이 기술의
적용으로 무엇보다 국산화개발에 실제적으로 가장 취약점이던 고온 고압용 유압 실린더의 핵심부품의 성능 향상기술을 확보할 수 있게 되었으며, 향후
이 원천기술을 바탕으로 극한 조건에서 활용되는 각종 압출 및 이송시스템의 국산화 개발이 촉진될 것임.



